Mazeau Immobilier Agence
Télécharger la fiche

Appartement 4 pièce(s) 3 chambre(s) 100 m²

Saint-Nazaire (44600)
988,56 € CC* * Charges comprises Référence 3500

A propos de ce bien

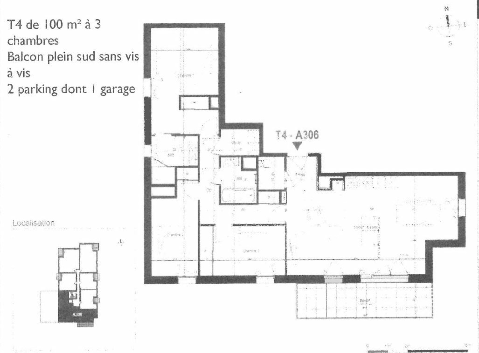
SAINT-NAZAIRE, dans un environnement verdoyant, proche des bassins de GUINDREFF, dans la résidence LES TERRASSES BOISEES, T4 (n°A306) de 100 m² situé au 3ème étage avec ascenseur, comprenant : entrée, séjour avec cuisine ouverte aménagée et équipée (plaques / hotte / four / frigo) de 37.83 m² dpnnant sur un balcon de 12.10 m² (exposé SUD), dégagement avec placard desservant 3 chambres avec placard dont l'une de 17.51 m² avec salle de douche privative. 1 salle de bains. WC séparé. Cellier. 1 place de parking ext. Garage fermé. LOI PINEL.

Disponible à partir du 18/05/2026.

Loyer C.C : 988.56 €/mois comprenant 65 €/mois de provision sur charges de copropriété mensuelles et entretien chaudière.

Dépot de garantie : 923.56€

Frais d'agence TTC : 1.312 € comprenant 1.009 € pour visite, constitution du dossier et rédaction du bail et 303 € pour frais d'état des lieux.


Les informations sur les risques auxquels ce bien est exposé sont disponibles sur le site Géorisques

Caractéristiques de ce bien

  • Surface 100 m²
  • 3 chambre(s)
  • 1 salle(s) de bain
  • 1 salle(s) d'eau
  • construit en 2021
  • Chauffage individuel : radiateur (gaz de ville)
  • 1 garage(s)
  • 1 parking(s)
  • exposition Sud
  • 3ème étage
  • ascenseur
  • balcon

Diagnostics énergétiques

Consommation énergétique
A B C D E F G
Emission de gaz à effet de serre
A B C D E F G

Montant estimé des dépenses annuelles d'énergie de ce logement pour un usage standard est compris entre 728 € et 985 € . 2021 étant l'année de référence des prix de l'énergie utilisés pour établir cette estimation.

Informations financières

Loyer CC* / mois 988,56 €
Honoraires TTC charge locataire 1 309 €
Dont état des lieux 303 €
Dépôt de garantie TTC 923,56 €
Charges locatives (Previsionnelles mensuelles les avec regularisation annuelle) 65 €

Autour du bien

  • Commerces et santé
  • Loisirs
  • Ecoles
  • Transports
  • Pratique