Sarah NAURAIS Négociatrice
Télécharger la fiche

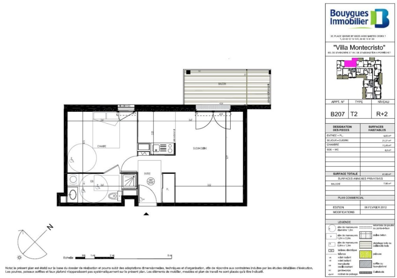
Appartement 2 pièce(s) 1 chambre(s) 41.66 m²

Pornichet (44380)
594,22 € CC* * Charges comprises Référence 45438

A propos de ce bien

A Pornichet dans la résidence Villa Montecristo, nous vous proposons un appartement T2 n°B207 de 41.66 m² avec balcon de 7.96 m² , au 2ème étage dans le bâtiment B avec ascenseur. Comprenant une entrée avec placard, un séjour cuisine, une chambre, une salle d'eau avec WC. Au rez-de-chaussée un stationnement dénommé PK49. Eau chaude et chauffage (individuel).

Disponible à partir du 13/02/2026

Loyer C.C. : 594,22 €/mois comprenant 62 € de provision sur charges de copropriété mensuelles.

Dépôt de garantie : 532,22 €

Frais d'agence TTC : 540 € comprenant 420 € pour visite, constitution du dossier et rédaction du bail et 126 € pour frais d'état des lieux.


Les informations sur les risques auxquels ce bien est exposé sont disponibles sur le site Géorisques

Caractéristiques de ce bien

  • Surface 41,66 m²
  • 1 chambre(s)
  • 1 salle(s) d'eau
  • construit en 2014
  • Chauffage individuel : convecteur (electrique)
  • exposition Sud
  • 2ème étage
  • ascenseur
  • balcon

Diagnostics énergétiques

Consommation énergétique
A B C D E F G
Emission de gaz à effet de serre
A B C D E F G
DPE en cours

Informations financières

Loyer CC* / mois 594,22 €
Honoraires TTC charge locataire 546 €
Dont état des lieux Non renseigné
Dépôt de garantie TTC 532 €
Charges locatives (Previsionnelles mensuelles les avec regularisation annuelle) 62 €

Autour du bien

  • Commerces et santé
  • Loisirs
  • Ecoles
  • Transports
  • Pratique